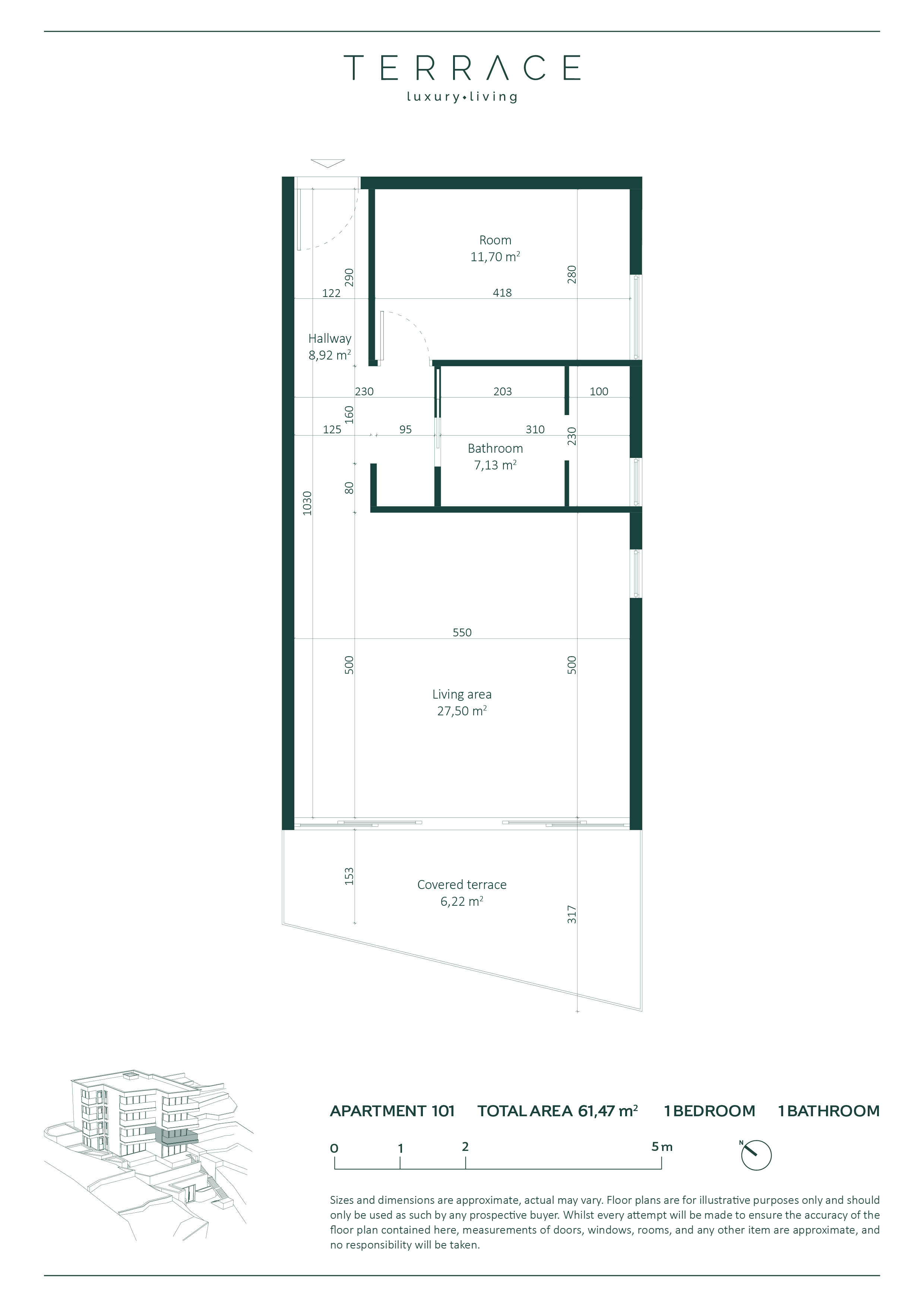
61.47m2
Apartment | 101
Površine:
Ulaz: 8.92 m2
Dnevna zona: 27.50 m2
Kupatilo: 7.13 m2
Soba: 11.70 m2
Terasa: 12.44 m2
UKUPNO: 61,47 m2
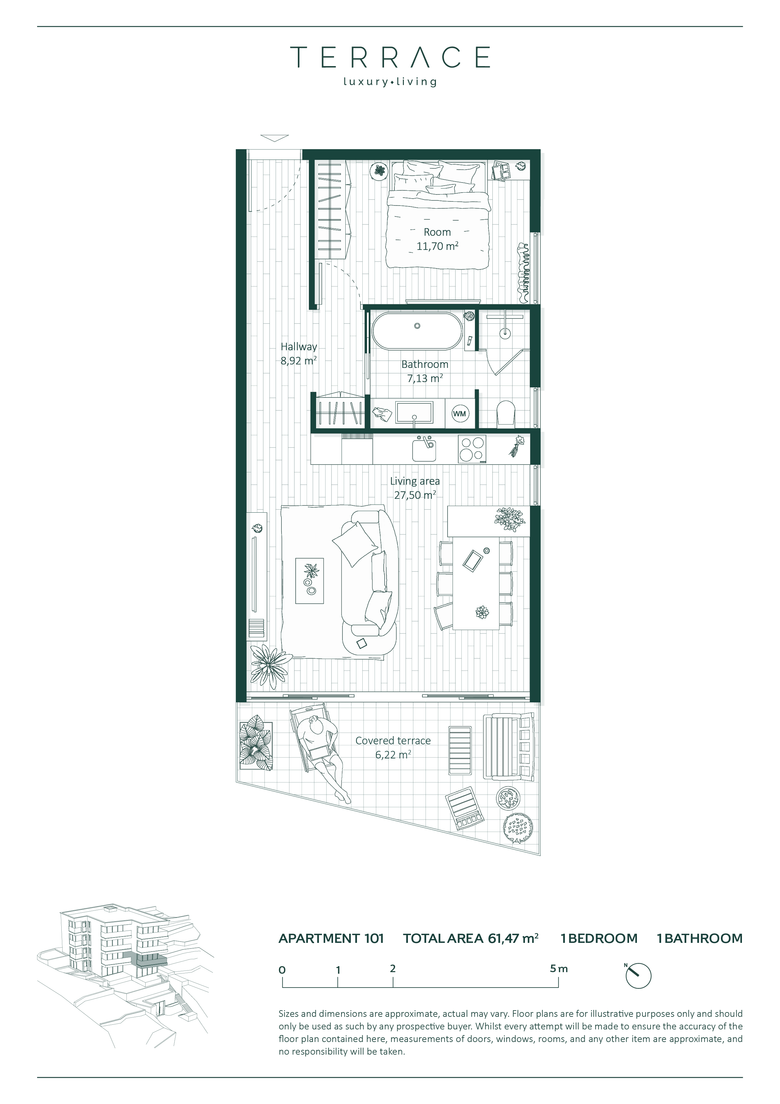
Apartment | 101
Ulaz: 8.92 m2
Dnevna zona: 27.50 m2
Kupatilo: 7.13 m2
Soba: 11.70 m2
Terasa: 12.44 m2
UKUPNO: 61,47 m2