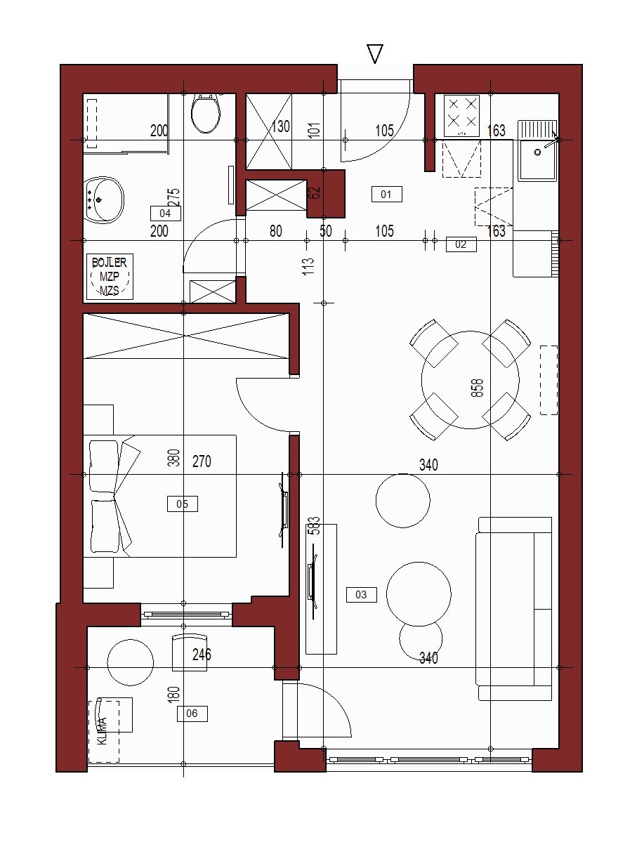
Su-Prospect Prvomajska 2
Prodajna osnova