Maloprodaja
Sportska radnja; Prodavnica igračaka; Prodavnica odeće i obuće;
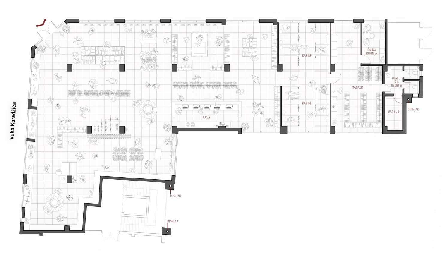
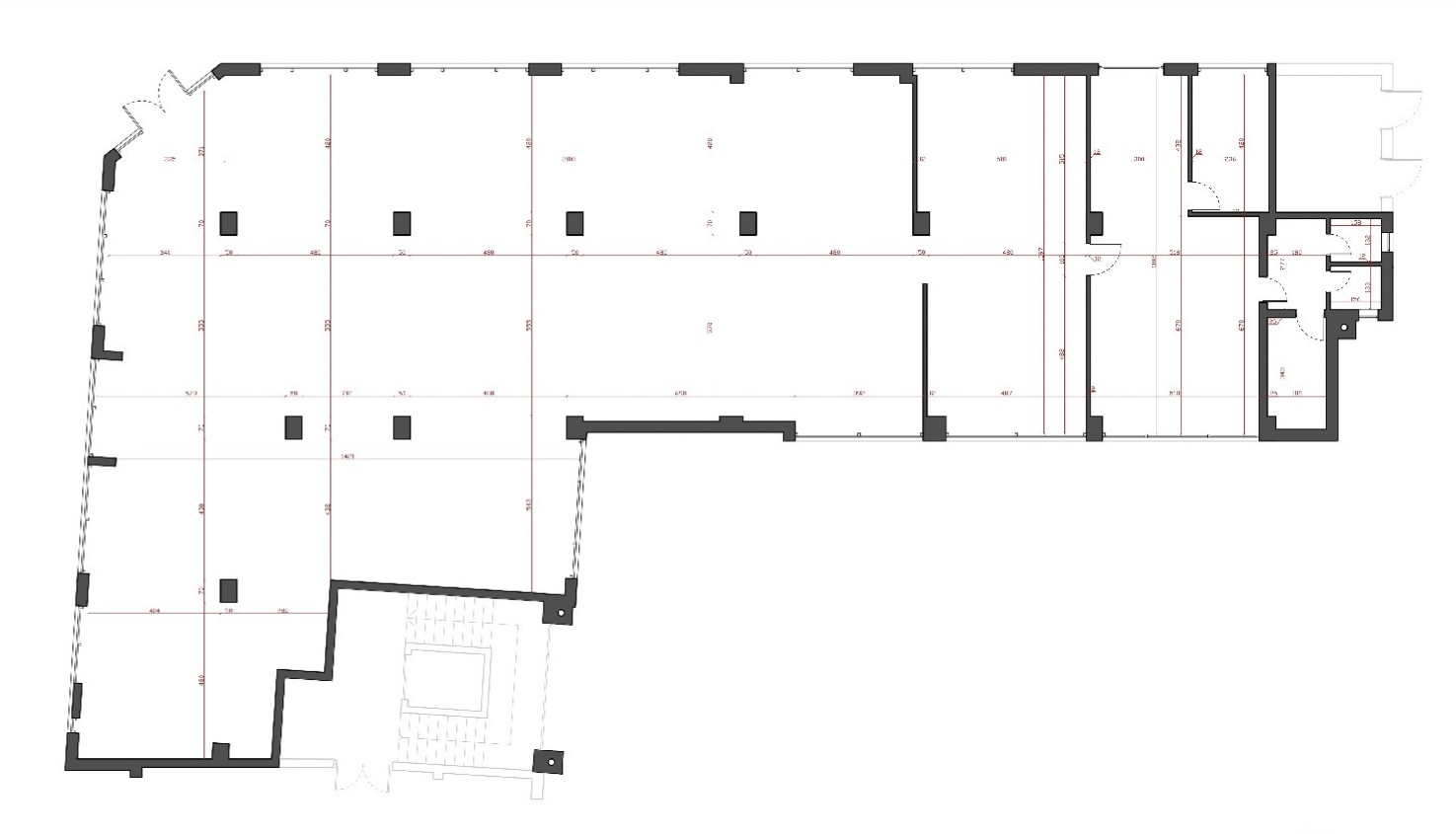
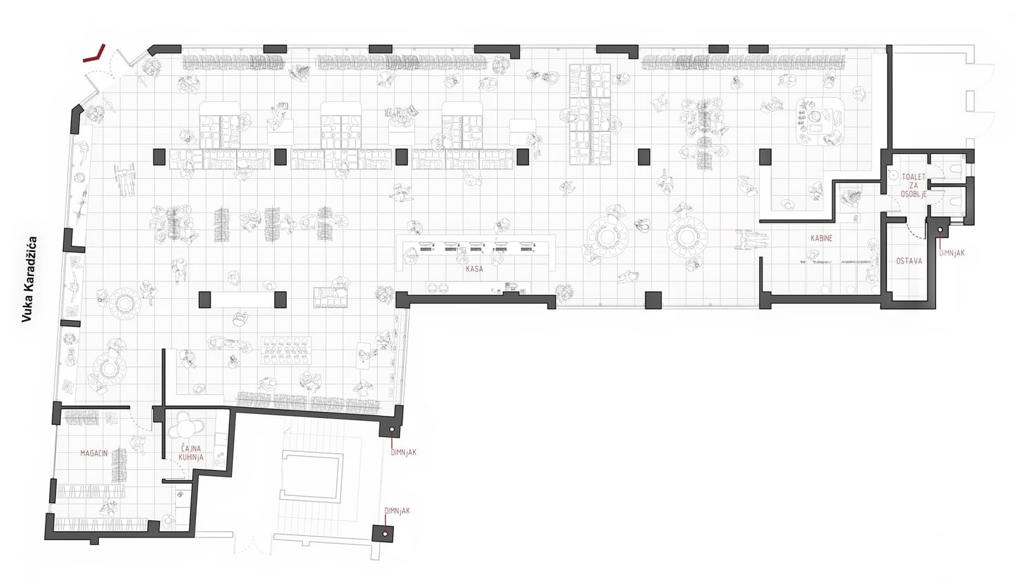
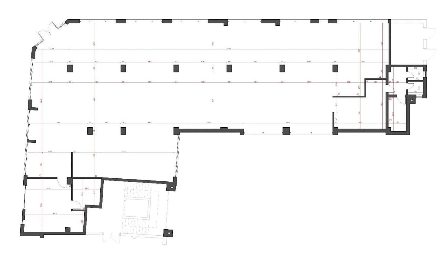
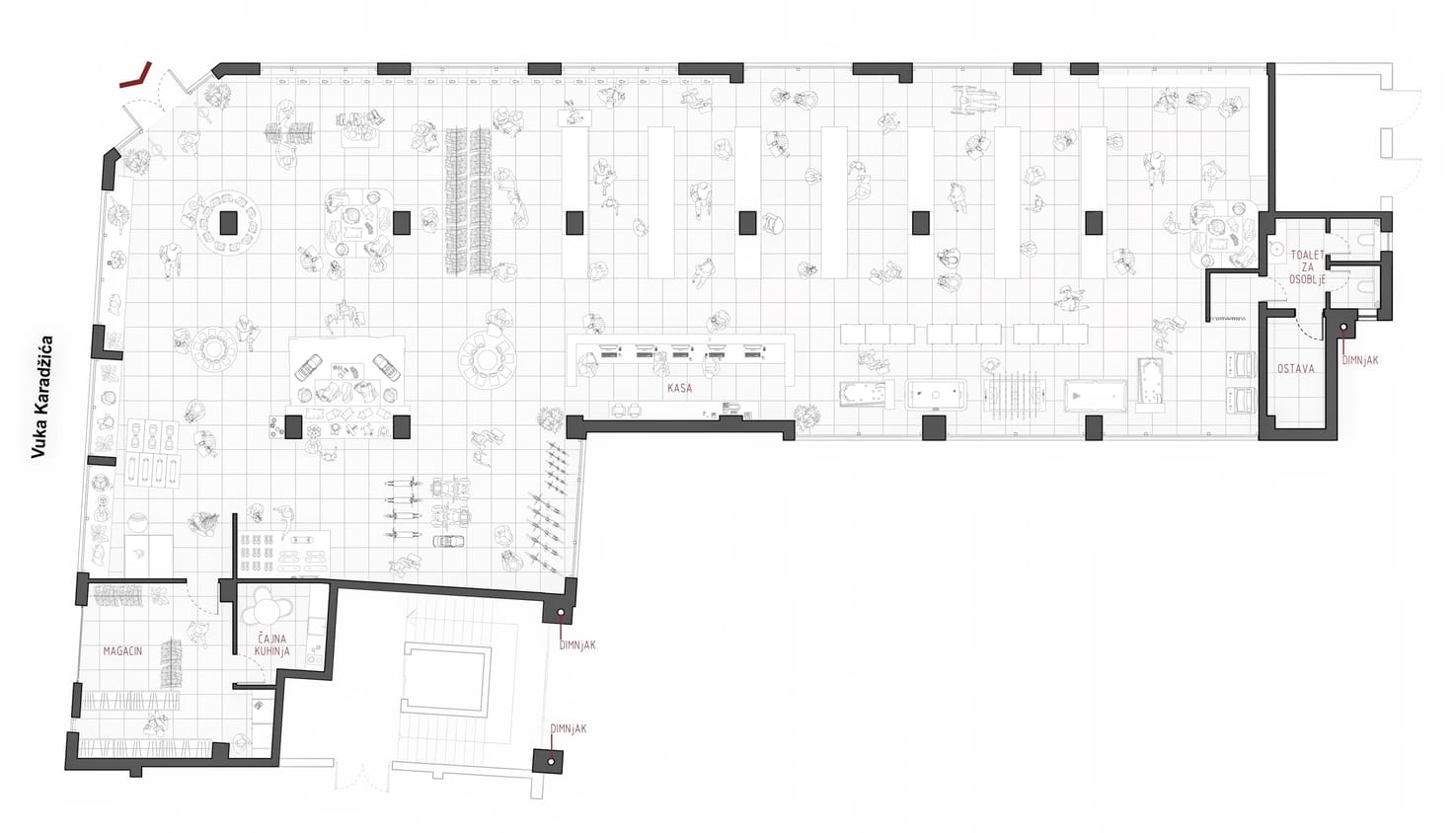
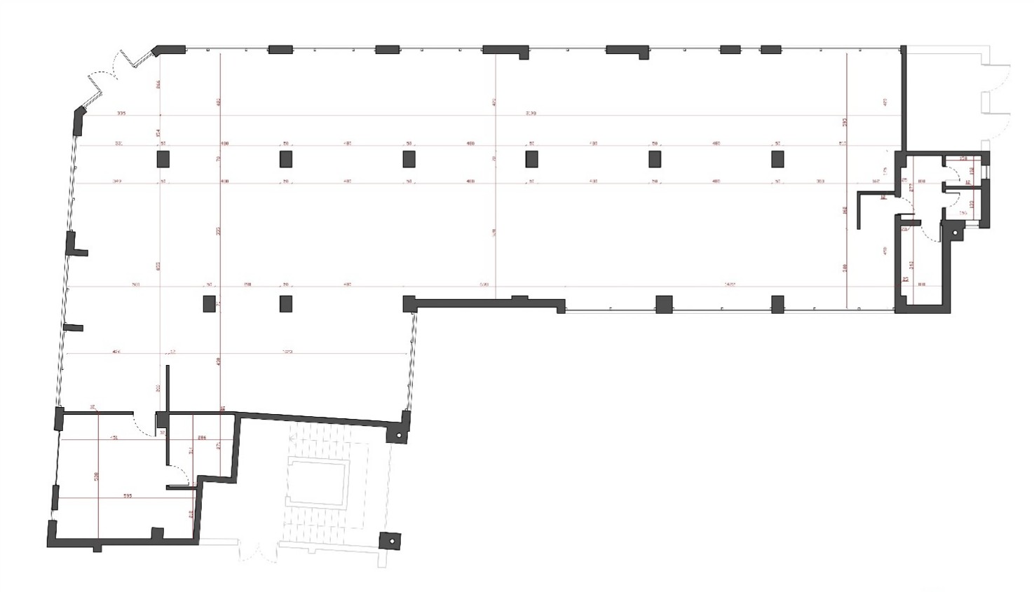
Poslovni prostor smešten u centru Subotice, na svega 40m od Korzoa, u ulici Vuka Karadžića, površine 510 m2, sa visinom plafona 3,50 metara.
Sportska radnja
Predlog funkcionalnosti 1
Lista usluga:
- Kupovina odeće
- Kupovina sportske opreme
- Kabine za probu artikala
Sadržaj prostora:
- Kabine
- Kabine za osobe sa invaliditetom
- Magacin
- Čajna kuhinja
- Toalet
- Kasa
- Izložbeni prostor












