Loading...
Skip to Content

Ugostiteljstvo

Kladionica; Kafić; Restoran;


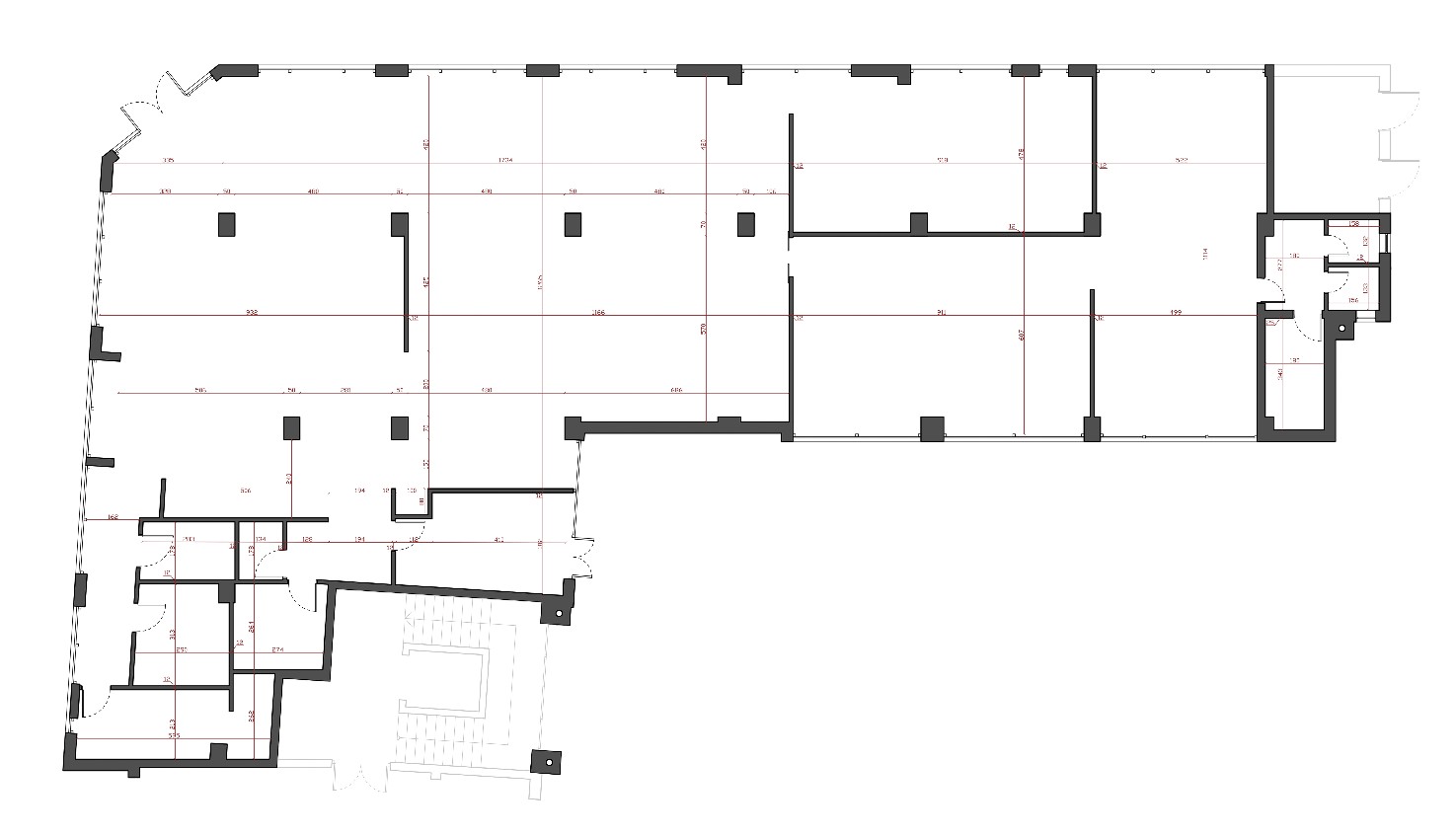
Poslovni prostor smešten u centru Subotice, na svega 40m od Korzoa, u ulici Vuka Karadžića, površine 510 m2, sa visinom plafona 3,50 metara.

Kladionica

Predlog funkcionalnosti 1

Lista usluga:


- Kafić
- Kladionica
- Kockarnica

Sadržaj prostora:


- Bar
- Bilijar
- Toalet
- Magacin
- Šalter
- Garderoba

Tehničke karakteristike:


- 510m2
- 130kW jačina struje
- 2 dimnjaka
- Pristup sa 2 ulice
- Pristup unutrašnjem dvorištu


DWG PDF


118
Mesta
23
Slot Aparata
2
Bilijar stola
1
Rulet aparat


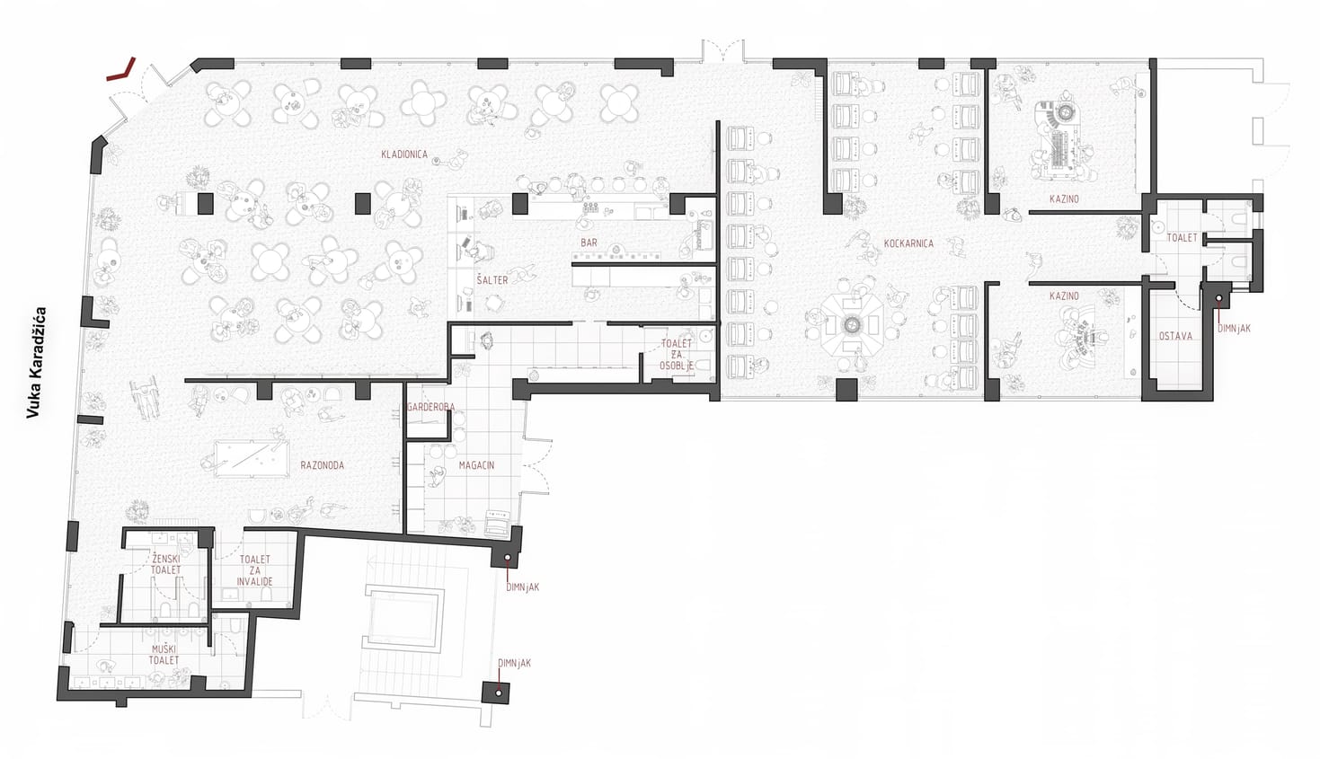
Kockarnica

Predlog funkcionalnosti 2

Lista usluga:


- Kafić
- Kladionica
- Kockarnica
- Kazino

Sadržaj prostora:


- Bar
- Šalter
- Bilijar
- Pikado
- Toalet
- Magacin
- Garderoba

Tehničke karakteristike:


- 510m2
- 130kW jačina struje
- 2 dimnjaka
- Pristup sa 2 ulice
- Pristup unutrašnjem dvorištu


DWG PDF




77
Mesta u kladionici
20
Slot aparata
2
Kazino prostorije
1
Rulet aparat


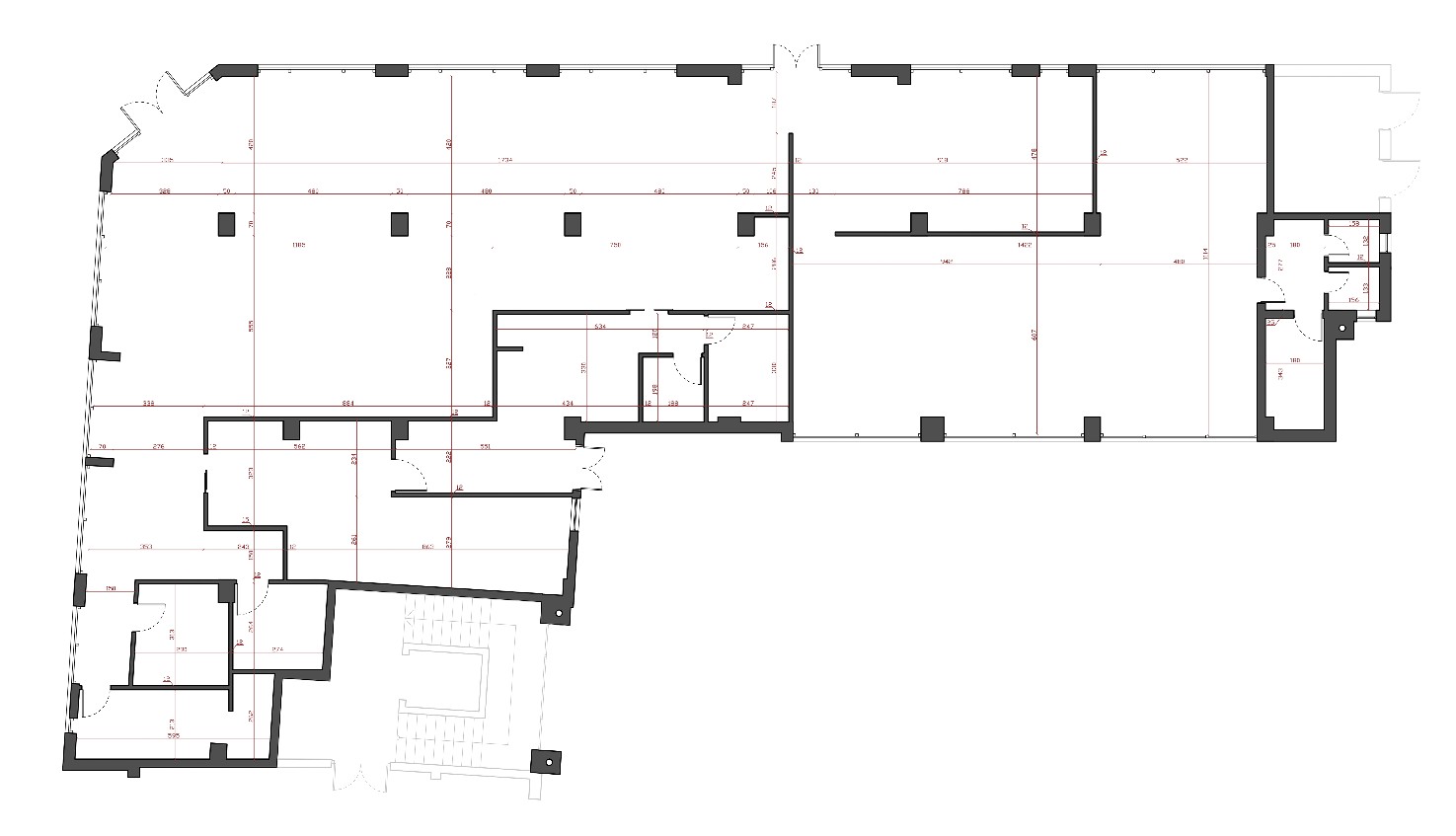
Kladionica sa restoranom

Predlog funkcionalnosti 3

Lista usluga:


- Kafić
- Restoran
- Kladionica
- Kockarnica

Sadržaj prostora:


- Bar
- Šalter
- Bilijar
- Kuhinja
- Toalet
- Magacin
- Garderoba

Tehničke karakteristike:


- 510m2
- 130kW jačina struje
- 2 dimnjaka
- Pristup sa 2 ulice
- Pristup unutrašnjem dvorištu


DWG PDF




77
Mesta u kladionici
23
Slot aparata
2
Bilijar stola
1
Rulet aparat