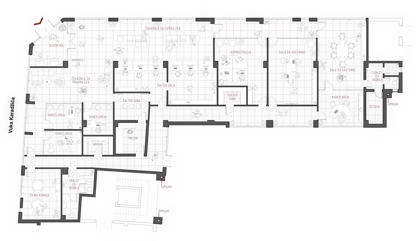
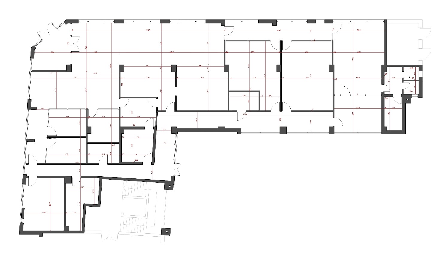
Poslovnica
Banka; Privatna klinika; Kancelarijski prostor;
Poslovni prostor smešten u centru Subotice, na svega 40m od Korzoa, u ulici Vuka Karadžića, površine 510 m2, sa visinom plafona 3,50 metara.
Privatna klinika
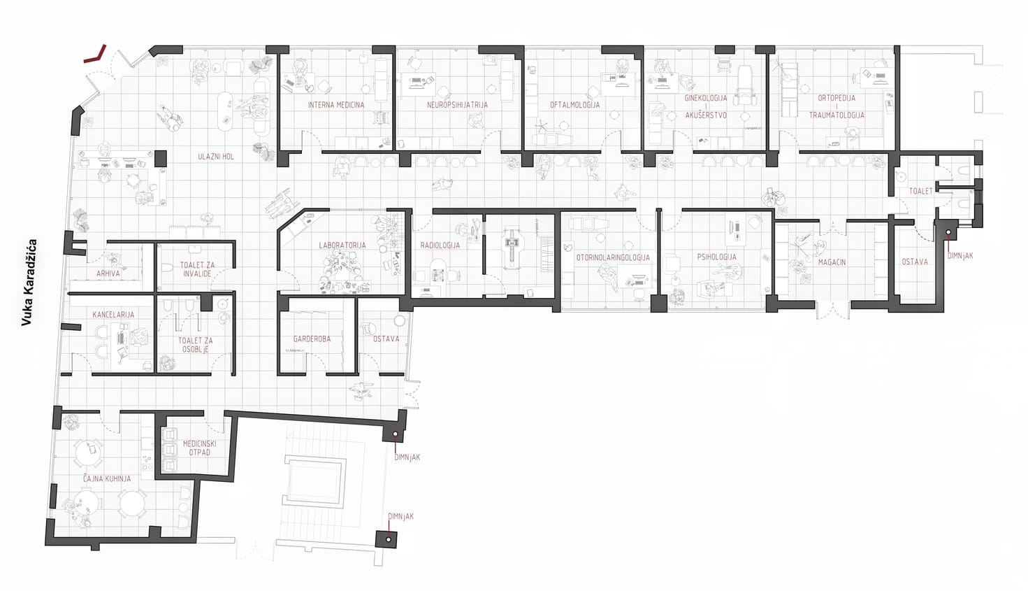
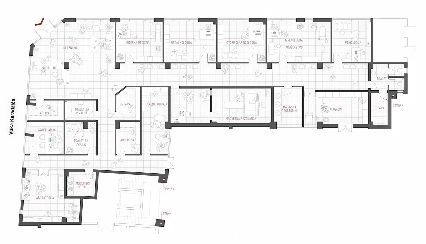
Predlog funkcionalnosti 1
Lista usluga:
- Interna medicina
- Neuropsihijatrija
- Oftamologija
- Ginekologija i akušerstvo
- Ortopedija i traumatologija
- Psihologija
- Otorinolaringologija
- Radiologija
- Laboratorija
Sadržaj prostora:
- Ulazni hol (čekaonica)
- Arhiva
- Kancelarija
- Garderoba
- Ostava
- Prostorija za medicinski otpad
- Čajna kuhinja
- Toalet
- Toalet za osoblje
- Toalet za osobe sa invaliditetom
- Magacin












